Education

the past and the present

jones high school

101 north parramore avenue

Photograph of Old Jones High School/Callahan Elementary
Started in 1882, Orlando Colored School, was located on the corner of Garland and Church Streets with I. S. Hankins Sr. serving as the first principal. In 1895 the school moved to the corner of Jefferson and Chatham Street and renamed to Johnson Academy in honor of Mr. Lymas Johnson, Orlando Colored School’s third principal. Johnson Academy educated students grades sixth to twelfth. Mr. L. C. Jones became the sixth principal of Johnson Academy. As the growth of settlements in the neighborhood, a larger school became necessary
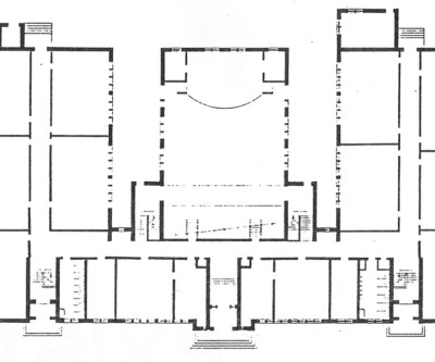
A new two-story brick school with an auditorium and a play yard was built in 1921 at the intersection of Parramore and Washington Streets. Fire escapes led from the back and front of both sides of the auditorium. The building was heated by steam with radiators in each room only, there was no air conditioning. Land was donated by the L. C. Jones family. The County Board of Education approved honoring the Jones family for their land donation by naming the new school Jones High School. Jones became the “neighborhood school,” grades 10 thru 12th.
"mighty tigers"
JHS Choir Singing the Alma Mater

1921 - 1951

"Teachers lived in the neighborhood with their students and shared pews with their parents."
Edna W. Coleman, Class of 1932
"Cowboys and Indians was played almost everyday in the play yard."
Flex Cosby, Class of 1926
Click to enlarge and read more

callahan elementary school

101 north parramore avenue

Callahan Elementary School
In 1952, Jones High School was moved to a larger new facility on West Cypress Street. The old building was converted to an elementary school and renamed Callahan School in honor of Dr. J.B. Callahan, a prominent black physician. Grades first to sixth grades were taught. On the first floor, there was the principal's office, cafeteria and 4 classrooms. On the 2nd floor there was the auditorium, library and 4 classrooms. There was a basement too. With the lack of textbooks, students were required to bring bibles to school’ At the beginning of each school day, during morning devotion, a bible scripture was read aloud after the Pledge of Allegiance. Memories included: decorating the May Pole for the “May Day” celebration at the end of the school year.
Teachers cared about the students by instilling values and ethics. After school clubs included the Gay Teeners for girls, Red Cross meeting and Cub and Boys Clubs for boys. During 1966 and 1967, the city of Orlando, and the United States Department of Housing and Urban Development, acquired the property adjacent to Callahan school. The property became a joint school/city park. Residents were relocated, buildings demolished, and a neighborhood park was constructed. The park was completed in 1968 and also named in honor of J.B. Callahan. In 1970, with black and white students being integrated, Callahan Elementary School closed.
"baby tigers"
"“The annual May Day Festival around the “May Pole”was always fun. We practiced and practiced daily; our teachers were very proud.”"
Anonymous
“The cafeteria food was just like momma’s home cooking.
Anonymous

1952 - 1970

Click to enlarge and read more

1962 federal desegregation order

OPENING INTEGRATION’S DOOR
In 1962 Reverend Nathaniel Staggers pastor of the Mt Zion Missionary Baptist Church and member of the Orange County National Association for the Advancement of Colored People (NAACP) recruited 8 black families to join a lawsuit to end segregation in the Orange County Public Schools. The families were the local foot soldiers of the civil-right movement. How they came to join the lawsuit is a lesson in ordinary people affecting extraordinary change.

View Document

1969 JONES HIGH SCHOOL BOYCOTT

“In the Winter of 1969, the NAACP's desegregation with agreement of OCPS (Orange County Public Schools) included the closing of Jones High School. Robert M. Spooney and Ronald O. Rogers, members of the Jones High School Senior Class of 1969 and officers in the Student Council organized and implemented a walkout to protest the planned closing. (February 1969). On the day of the walkout most of the school students marched off the campus only to be stopped at OBT (Orange Blossom Trail) by Principal, Wilbur Gary. Not to be discouraged, the walkout was changed to a boycott to start the next day. On that day almost 100% of the student population boycotted the school. The boycott lasted for three days. After seeing the display, the School Board and the NAACP revisited the decision to not close Jones High."
Reverend Dr. Robert M. Spooney, Pastor Mount Zion Missionary Baptist Institutional Church Inc.
Click to enlarge

nap ford charter school

325 North Parramore Avenue

Nap Ford Charter School
Championed by former Orlando City Commissioner Daisy Lynum and former Mayor Glenda Hood, Nap Ford Community school served as a void for the Callahan community, whose children were bussed to outside schools since the desegregation order took effect in 1972. The school was named after Napoleon “Nap” Ford, a former educator, and District 5 City Commissioner. The charter school served 150 children in preschool through fifth grade. As a Charter schools the school was publicly funded, privately operated under the authority of the Orange County Public School System with flexibility than the traditional public schools. The school was built on a former overflow parking lot adjacent to the former TD Waterhouse Centre in the original Central Florida Fair Grounds.
“Commissioner Ford wanted to see a neighborhood school [in Parramore], and one of the only ways to bring a school into the neighborhood was to make it a charter school.”
Anonymous
“The teachers were really hands-on and cared about the progress of the students.”
Anonymous

2001 - 2015

Commissioner Napolean Ford

Napoleon “Nap” Ford
1980 – 1998 City Commissioner, District 5

Image
“When the history books are written, they will say Nap Ford imparted incredible wisdom and made a difference."
Mayor Glenda Hood

Orange Technical College Logo

orange technical college

301 west amelia street
Image
For more than 80 years, Orange County Public Schools has been making history and changing lives through education by providing career and technical training for tens of thousands of students in Central Florida. This is of paramount importance to our students.

opened in 1981


OTC provides a diverse curriculum of learning in addition to a slate of technical career offerings to the community.
The global marketplace is expanding every day and the world needs new professionals coming out of technical colleges across the U.S. who are trained and ready for career opportunities and lifelong personal and professional growth.
Image
Image
In 1933, Orange County Vocational School opened and since then, the technical college has continued to grow and evolve, always focused on improving the lives of students and positively impacting workforce needs.

Through our history we have grown exponentially to increase the skillsets, expand horizons, and enhance the job outlook for each of our valued students. A good education is vital, and wherever you are in Florida, we can provide it.

Image

florida
agricultural & mechanical
university

College of law
201 beggs avenue
"The rattlers"
Image

Florida A&M's Mission:

The reestablished Florida Agricultural and Mechanical University College of Law reaffirms our historical legacy of excellence and responsibility to serve as a transformative force for the public good. Our mission is to serve as a beacon of hope and catalyst for change by providing access to excellent educational training and opportunities to generations of students seeking to serve the needs of traditionally underserved people and communities locally, nationally and internationally.
While we continue our historic mission of educating African-Americans, we embrace persons of all racial, ethnic and national groups as members of the university community. We are dedicated to developing legal professionals and community leaders committed to equitable justice and the rule of law.
FAMU Law pre-sets the example for the community on community engagement, social recognition and participation.”
Orlando campus opened:2005
Image
Image
Image

academic center
of
excellence school

701 west livingston street
"Lions" Pre-K-8
Image

ACE'S Mission

With the support of families and the community, we create enriching and diverse pathways that lead our students to success.

ACE'S Vision & Objectives

To ensure every student has a promising and successful future.
  • High Expectations for Student Learning
  • Student Social and Emotional Well-Being
  • Dedicated and High-Quality Team
  • Positive Climate and Safe Environment
  • Efficient Operations
  • Engaged and Invested Community
Image
The school will provide a high-quality Rosen Preschool program for two and three-year-old children funded by local hotelier and philanthropist Harris Rosen. Through the Harris Rosen Foundation, every student who attended OCPS ACE and graduates from Jones High School will receive a scholarship to attend a two or four-year public college or university or technical/vocational school in Florida.
Image

opened 2018

"ACE allows our kids from the community a place to call home"
Image
500 west Livingston street

UCF's Mission

Student Conduct and Academic Integrity (SCAI), a division of the Office of Student Rights and Responsibilities, provides educational opportunities that foster individual growth, ethical development and personal accountability while promoting the core values of the university: integrity, scholarship, community, creativity, and excellence.

UCF's goals

  • Educate students, student organizations, faculty and staff on community responsibilities and behavioral standards
  • Provide fair and impartial review for students and student organizations charged with violating University policies
  • Assign purposeful sanctions that support personal growth and development
  • Promote a campus climate of civility and accountability
  • Promote a safe and inclusive atmosphere conducive to student success
Image
downtown campus opened2019
“UCF Partnership with the community and Creative Village is a plus and well-planned invest to the community and downtown Orlando”
Image
Image
Image

valencia college

500 west Livingston street

downtown campus opened2019
The Valencia College Downtown Campus, a shared campus with UCF, will serve our downtown community and improve countless lives through the power of education. Home to the Walt Disney World® Center for Culinary Arts and Hospitality, the downtown campus will fulfill the need for hospitality and culinary workers in an industry expected to grow 10.8 percent in Central Florida through 2023. You will have an opportunity to learn from award-winning chefs, work with state-of-the-art culinary tools and train in a variety of cuisines—everything you need to land a successful career upon graduation.
The campus will also offer Accelerated Skills Training programs that will give you an opportunity to prepare for high-demand, higher-wage careers in a short amount of time-from Mechatronics to Distribution Operations Technician to Electronic Board Assembly.
“VCC’s commitment to the community and the Creative Village will produce dividends of worth and merit for years to come”

Image
Image
Click the button below to add your EDUCATION memories
Add Your Memories